︎
T Parsons
About
Journal
Work
T Parsons
About
Work
Journal
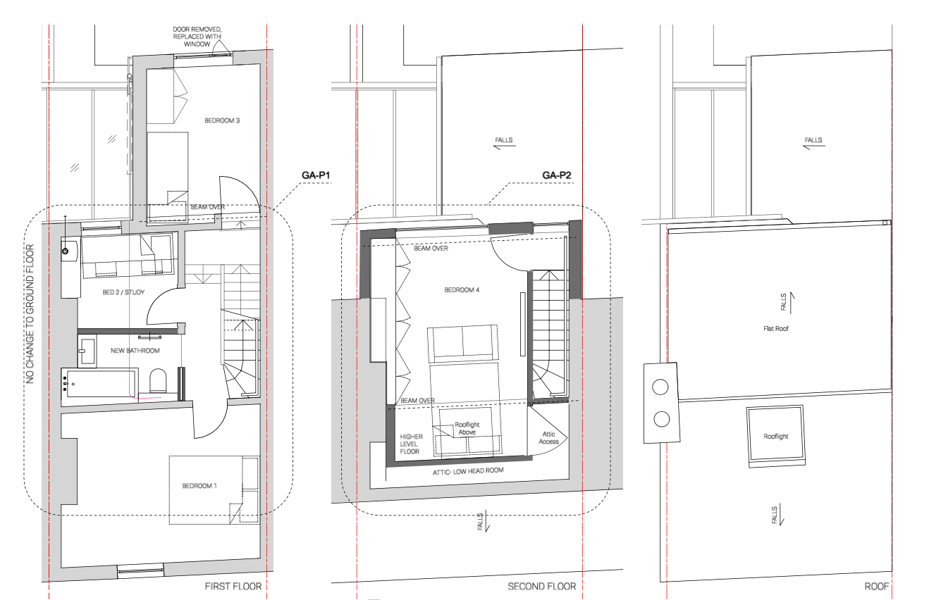
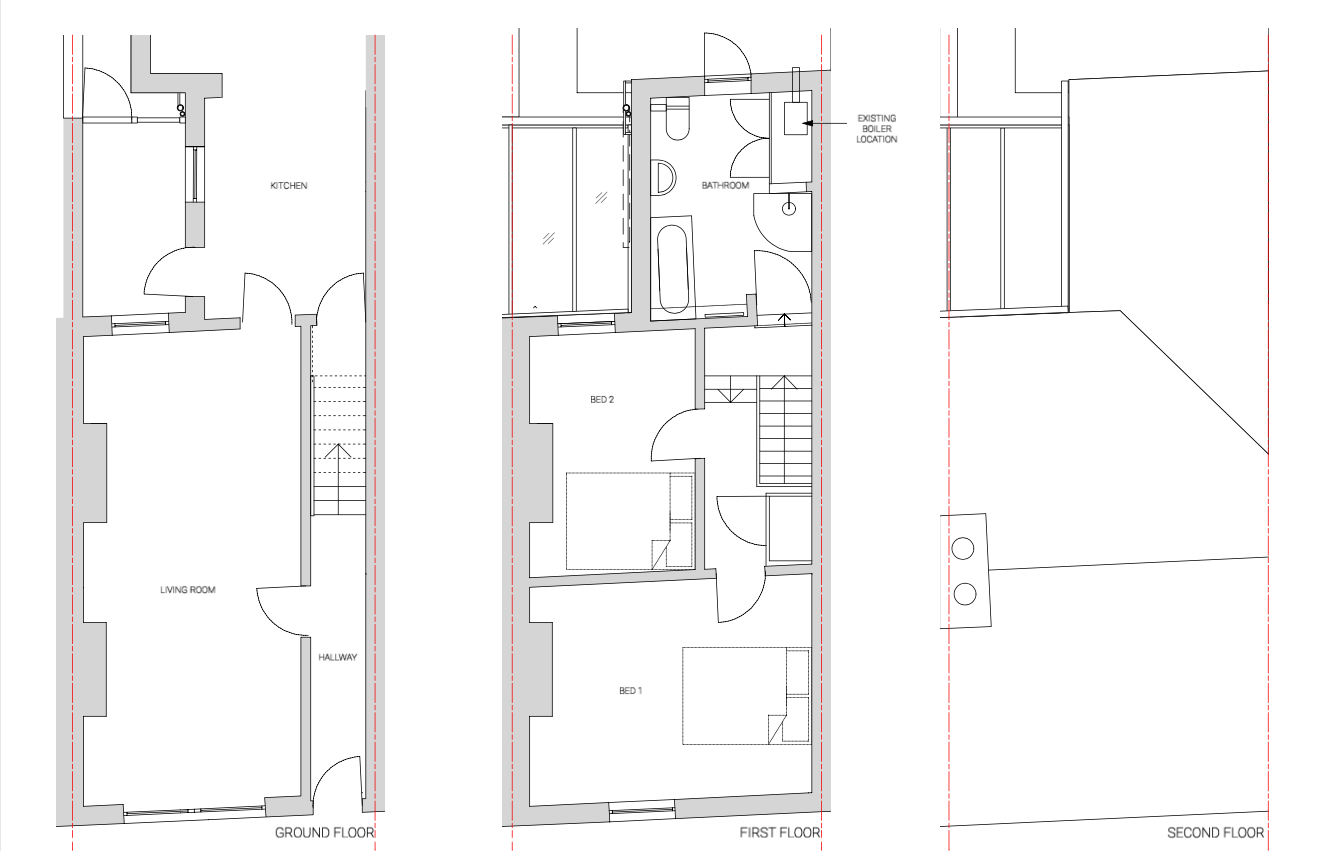
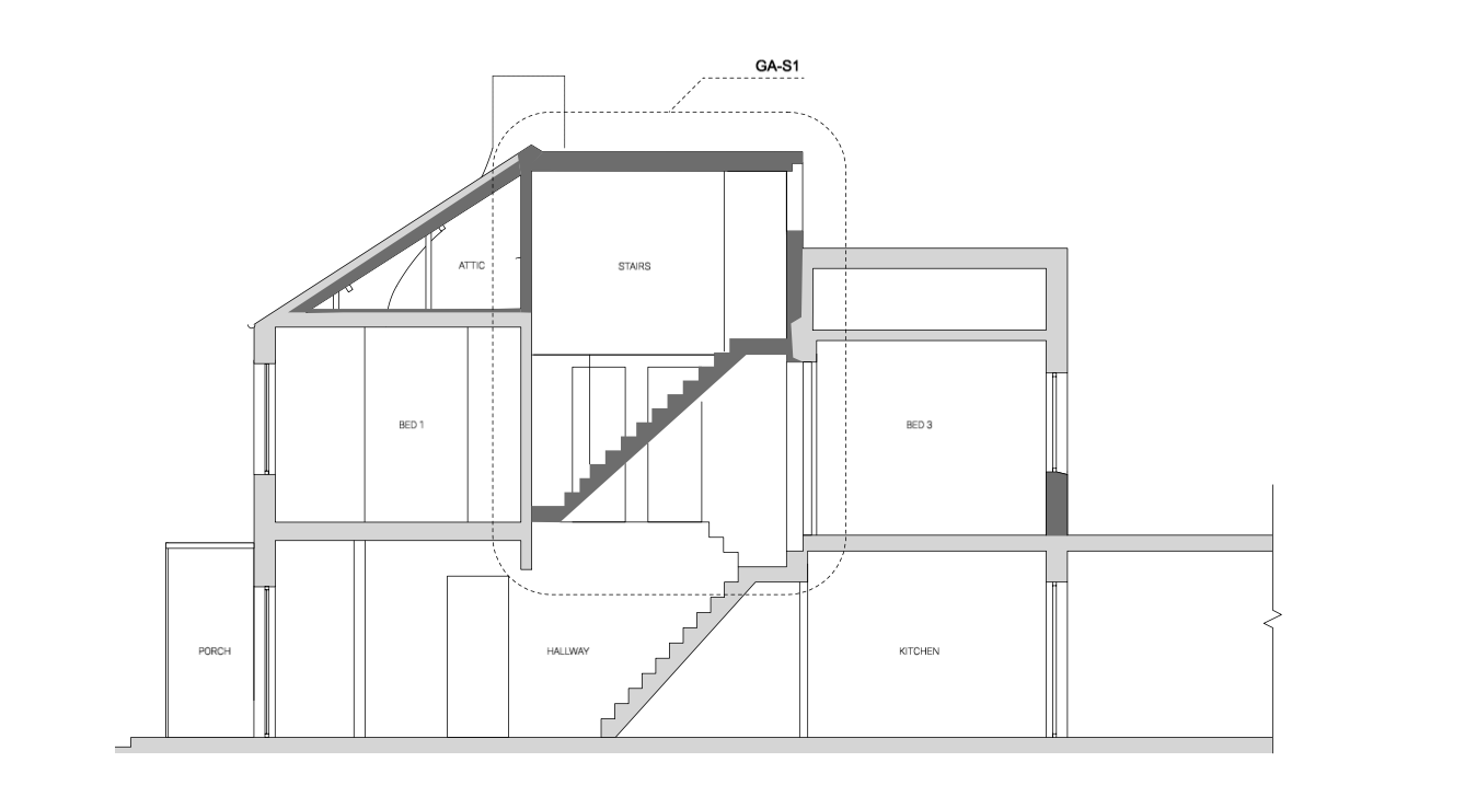
Loft
A first floor renovation and loft conversion in Cumbria under permitted development.
Contact
Say Hello!
︎Web Form
︎ t@tparsons.co.uk
︎
07855140502
︎ Instagram
Portfolio:
Work
Architecture: Built
Architecture: Not yet photographed
Architecture: A selection of built projects at previous practices
Other