Leyton Interior
Leyton Interior
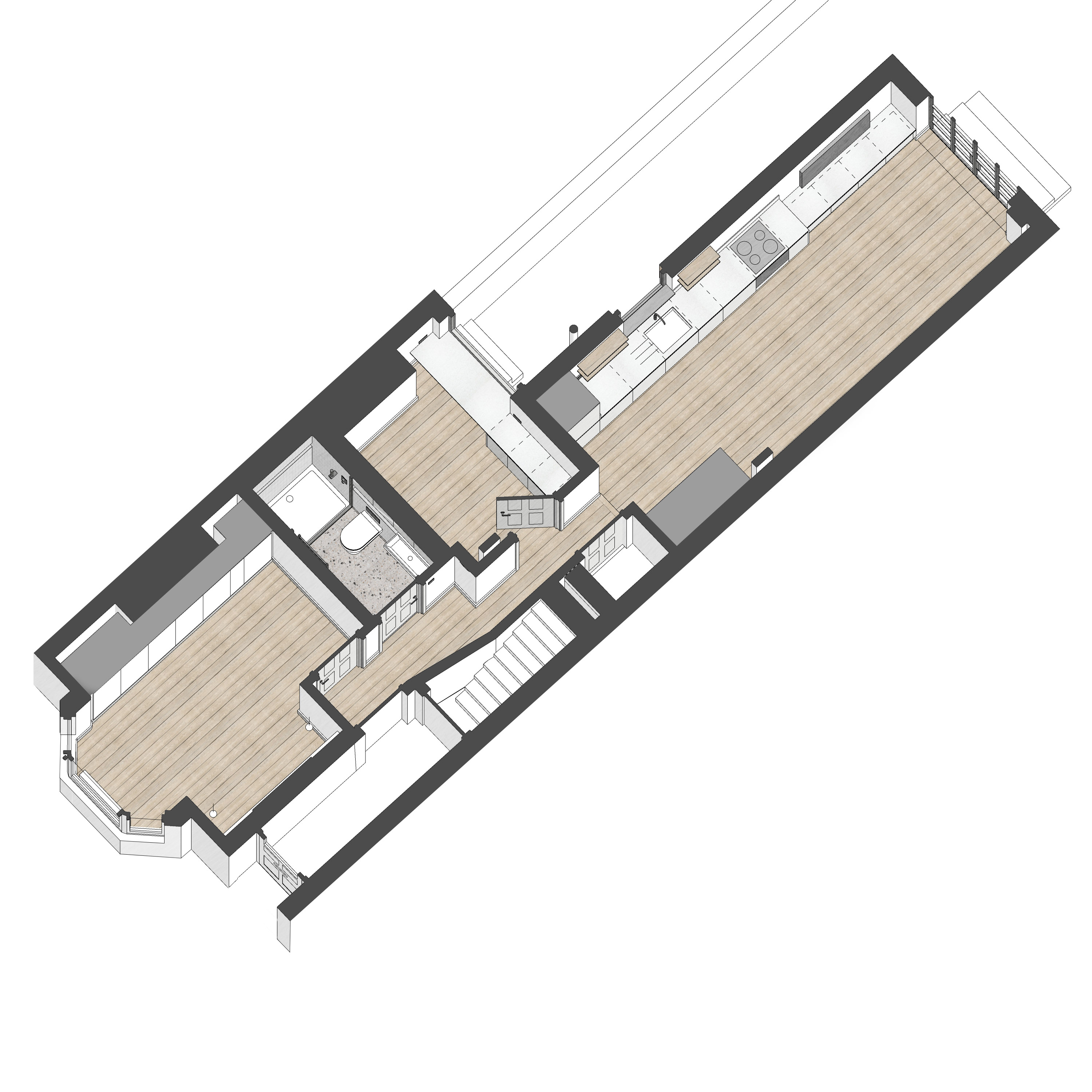
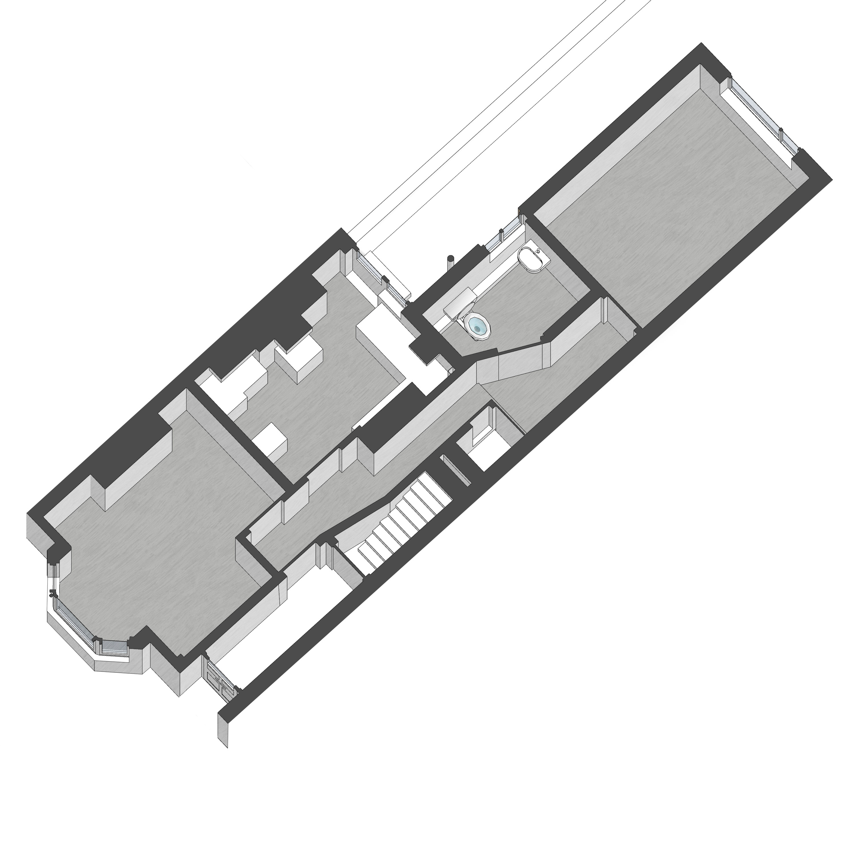
An interior renovation on a tight budget for a small developer client, vastly improving the living space and increasing the number of bedrooms of this ground floor flat by reconfiguring the layout.
During
Before































